Баня из керамзитобетонных блоков
Керамзитобетонные блоки стремительно набирают популярность среди частных застройщиков. Материал отлично подходит для использования при самостоятельном возведении жилых и хозяйственных построек, в том числе бань различных размеров и конфигураций.

Баня из керамзитобетонных блоков

Баня из керамзитобетонных блоков — фото строительства
Вкратце о керамзитобетонных блоках
Среди ключевых преимуществ керамзитобетона следует, прежде всего, отметить превосходные теплоизоляционные характеристики. Для сравнения: у блоков этот параметр в среднем на 200-300% превышает аналогичное свойство кирпича. При этом класть блоки ничуть не сложнее, чем взятый для сравнения кирпич: благодаря малому весу их можно без существенных усилий поднимать, переносить и укладывать в одиночку, что исключает необходимость обязательного привлечения дополнительной рабочей силы и спецтехники. Каких-либо сложных особенностей кладки тоже нет: возвести стену из керамзитобетонных блоков сможет каждый, кому приходилось «общаться» с кирпичом – ключевые принципы те же.

Сравнение строительных материалов

Характеристики керамзитобетонных блоков
Не менее важным для условий жилого строительства показателем является абсолютная экологическая безопасность керамзитобетона – в составе блоков нет никаких вредных химических примесей. В процессе нагревания этот материал, в отличие от многих «собратьев», тоже ничего ядовитого не выделяет. Следовательно, блоки прекрасно подходят для возведения бани.

Сравнительная характеристика материалов
Но не все так однозначно. У керамзитобетонных блоков, как и у каждого строительного материала, есть собственные слабые стороны. Лидер антирейтинга – выраженная гигроскопичность. На этот момент можно было бы закрыть глаза, но не в условиях бани с ее повышенной влажностью. Да, насыщение стен водой в нормальных условиях не так уж и страшно, однако при первых же заморозках скопившаяся влага замерзнет и расширится, что спустя некоторое время неизбежно приведет к разрушению строительного материала.

Керамзитобетон очень гигроскопичен
По морозостойкости блоки из керамзитобетона также проигрывают многим доступным вариантам. По ГОСТу среднее количество циклов заморозки-оттаивания блоков держится на уровне 25-50. Для жилого строительства в нормальных условиях – не самый худший показатель. Но в бане, которая, к примеру, в холодное время года растапливается 1-2 раза в неделю, а после оставляется хозяином остывать, упомянутое количество циклов будет исчерпано в течение максимум пары лет.

Керамзитобетонные блоки на фото
Для исключения вышеупомянутых рисков, стены, выложенные из керамзитобетонных блоков, в обязательном порядке утепляются и обеспечиваются влагопароизоляцией. Грамотное устройство такой защиты исключит риск намокания и последующего разрушения материалов.

Тут применяется трехслойная система стен – кладка керамзитоблоков толщиной 40 см, далее утеплитель и кирпич
На этом краткий экскурс в теоретическую часть завершается. Далее вашему вниманию предлагается подробное пошаговое руководство по самостоятельному возведению бани из керамзитобетонных блоков: от устройства опорной конструкции до монтажа крыши и рекомендаций по внутреннему обустройству помещений.
Основа основ: делаем фундамент для блочной бани
Количество разновидностей опорных конструкций впечатляет: столбчатые и ленточные, монолитные и сборные, бетонные и кирпичные и т.д. Выбор подходящих характеристик фундамента – дело первостепенной важности, ведь без надежной основы рассчитывать на нормальную службу здания не приходится.
Баню из керамзитобетонных блоков целесообразнее всего возводить на ленточном или плитном бетонном основании. При выборе конкретного варианта ориентируемся, прежде всего, на тип почвы на участке. Рекомендации отражены на следующей иллюстрации.

Выбор фундамента
Особенности выбора других ключевых характеристик фундамента для блочной бани также определяются преимущественно свойствами грунта на площадке.
Во-первых, надо учесть глубину промерзания почвы (обычно фундаменты стараются закладывать хотя бы на 20-30 см ниже этого показателя).
| Регионы | Глубина промерзания грунта, см |
|---|---|
| Воркута, Сургут, Нижневартовск, Салехард | 240 |
| Омск, Новосибирск | 220 |
| Тобольск, Петропавловск | 210 |
| Курган, Кустанай | 200 |
| Екатеринбург, Челябинск, Пермь | 190 |
| Сыктывкар, Уфа, Актюбинск, Оренбург | 180 |
| Киров, Ижевск, Казань, Ульяновск | 170 |
| Самара, Уральск | 160 |
| Вологда, Кострома, Пенза, Саратов | 150 |
| Воронеж, Пермь, Москва, Санкт-Петербург, Новгород, Рязань, Тамбов, Тула, Ярославль | 140 |
| Волгоград, Курск, Смоленск | 120 |
| Псков, Астрахань | 110 |
| Белгород, Курск, Калининград | 100 |
| Ростов | 90 |
| Краснодар | 80 |
| Нальчик, Ставрополь | 60 |
Во-вторых, надо правильно идентифицировать тип грунта на строительной площадке.

Способы определения грунтов

Типы грунтов
В-третьих, нужно принимать во внимание взаимосвязь между уровнем прохождения подземных вод и глубиной промерзания почвы.
Ленточная опорная конструкция может использоваться в комплексе с большинством существующих разновидностей грунтов, отчего и является наиболее распространенной.

Ленточные фундаменты
Плитные же конструкции не такие универсальные. Их можно использовать лишь в комплексе с не особо подвижными грунтами.

Плитный фундамент
Видео – Ленточный фундамент
Выбрав оптимальный вариант опорной конструкции, останется лишь рассчитать ее, после чего можно будет приступать непосредственно к возведению фундамента. Подробные рекомендации в отношении каждого из упомянутых этапов приводились ранее в соответствующих публикациях нашего сайта.
Полезный совет! Заранее определитесь с оптимальными размерами и особенностями внутренней планировки бани. Можете разработать проект самостоятельно, поручить это стороннему специалисту или использовать одно из готовых решений. В статье рассматриваются проекты бань из бруса – это непринципиально, главное – выбрать подходящую внутреннюю конфигурацию.
Строительство бани из керамзитобетонных блоков

Строительство бани из керамзитобетонных блоков
Подготовка
Начнем с подготовки требуемых приспособлений. Для большего удобства восприятия информация представлена в виде таблицы.
Таблица. Набор для работы
| Позиция | Предназначение |
|---|---|
Резиновый молоток |
Будет использован для усаживания блоков. Рекомендуется брать инструмент весом порядка 1 кг. Металлический молоток не подойдет – контакты с ним могут привести к разрушению блоков. |
Рулетка |
В дополнительном представлении не нуждается. |
Строительный уровень |
Позволит контролировать правильность (ровность) укладки блоков. |
Кельма |
Применяется для нанесения кладочного раствора. Удобнее всего использовать инструмент с прямоугольной площадкой. |
Шнур |
Используйте тонкий, но максимально прочный шнур-причалку. |
Угольник |
Позволит правильно разметить строительные элементы перед распиловкой на части. |
Отвес |
Инструмент позволяет контролировать ровность кладки по вертикали. |
Болгарка |
Применяется для резки керамзитобетонных блоков. Также этот инструмент позволяет создавать штробы для размещения арматуры. В комплекте с болгаркой используйте отрезной круг диаметром от 22 см. |
Лопата |
С помощью этого нехитрого инструмента вы будете загружать бетономешалку исходными компонентами смеси для кладки и транспортировать готовый раствор к рабочей площадке. |
Бетономешалка |
Предназначена для перемешивания исходных компонентов строительных растворов. Можно обойтись и без данного приспособления, готовя смесь вручную, но это приведет к нерациональному увеличению временных и трудовых затрат. |
Леса |
Пригодятся при выполнении высотных работ. Самый оптимальный вариант – арендовать конструкцию у ближайшей строительной компании. |
В дополнение к вышеперечисленному, купите следующее:
Перечень может дополняться различной мелочевкой – в этом моменте вы сориентируетесь уже по ходу выполнения работы.
На что класть блоки?
Блоки можно класть на цементно-песчаную смесь либо готовый клей. Информация о доступных вариантах приведена в таблице.
Таблица. Вяжущие смеси для кладки керамзитобетонных блоков
| Материал | Описание |
|---|---|
Готовый клей |
Продается в виде сухой смеси. Приготовление осуществляется в соответствии с инструкцией производителя и сводится к перемешиванию с указанным количеством воды (иногда в смесь добавляются дополнительные вещества, уточняется отдельно в инструкции).
Для приготовления смеси удобно использовать строительный миксер или электрическую дрель с соответствующей насадкой. Клей для блоков характеризуется высокой пластичностью и отличными связующими характеристиками. Применение состава дает возможность получения швов толщиной порядка 0,5 см, что обеспечивает более высокие теплоизоляционные свойства конструкции, но увеличивает расходы на ее возведение. Средний расход клея на кладку кубометра блоков составляет от 40-50 кг и меняется в зависимости от толщины швов. В продаже доступно несколько видов клея для керамзитобетонных блоков: — стандартный – подходит для работы с керамзитобетоном, газосиликатными и прочими блоками. Помимо основной функции, может использоваться для устранения мелких дефектов блоков в виде незначительных сколов, трещин и т.д.; — зимний. Предназначен для кладки в холодную погоду; — теплосберегающий. Позволяет возводить конструкции без «мостиков холода», благодаря чему значительно снижаются показатели температурных потерь. Хорошо подходит для возведения стен и перегородок бани. Среди производителей, наилучшим образом зарекомендовавших себя на рынке вяжущих смесей и связующих компонентов, можно отметить марки САРМАТ, Ilmax, LISMIX. Полезный совет! Многие производители керамзитобетонных блоков предлагают клей, разработанный специально для кладки материалов их производства. По возможности следует использовать именно такие составы. |
Цементно-песчаная смесь |
В данном случае берутся нижеперечисленные материалы в указанных количествах:
— цемент от М400 – одна доля; — песок – три доли; — вода – 0,7 долей. Компоненты тщательно перемешиваются до получения однородного состава Внимание! Указанное количество воды является усредненным и может меняться в зависимости от уровня влажности используемого песка. В результате вы должны получить пластичный состав, позволяющий без лишних усилий усаживать блоки. Наряду с этим, смесь не должна растекаться. Полезный совет! Для увеличения упругости смеси, вместо некоторой доли карьерного песка можно брать речной материал. Раствор готовьте небольшими порциями, примерно на 1-2 часа кладочных работ. Лучше, чтобы состав постоянно перемешивался в бетономешалке – так его пластичность будет сохраняться на достаточном уровне. |

Клей для керамзитобетонных блоков
Выбираем способ кладки стен
Существует несколько методов кладки стен из керамзитобетонных блоков. Подходящий вариант выбирается с учетом особенностей конструкции, толщины стен, характеристик теплоизоляции и финишной облицовки. Информация об основных способах кладки приведена в таблице.
Таблица. Способы кладки стен из керамзитобетонных блоков
| Методы | Описания и пояснения |
|---|---|
| В половину блока | Применяется при кладке стен толщиной, равной ширине керамзитобетонного блока (чаще всего – 19 см). При строительстве бани этот метод можно использовать разве что если постройка будет очень редко использоваться по своему прямому назначению.
Блок кладется длинной стороной по линии перегородки. Ряд – один. Через каждые 3-4 ряда кладка упрочняется при помощи арматуры. Вверху возводится армирующий пояс высотой до 200 мм. Для утепления целесообразно применять пенополистирол либо минераловатные материалы. Оптимальная толщина теплоизоляционного слоя – от 50-100 мм. |
| Шириной в целый блок | В данном случае осуществляется перевязка стен, а тычковые и ложковые ряды чередуются. Ширина такой стены – 39 см, т.е. по длине строительного блока.
Рекомендации в отношении армирования те же. Кладка оптимально подходит для строительства жилых зданий и частных бань. Рекомендации в отношении утеплителей и их толщины аналогичные. |
| Шириной 600 мм | Этот метод имеет много общего с колодцевой кладкой кирпича. Блоки перевязываются, между ними остаются пустоты. Для заполнения свободных промежутков применяется теплоизоляционный материал. |
| Двумя стенками | Выкладывается 2 параллельные стенки в половину блока. Для связки используются металлические пруты. Между стенками размещается 5-10-сантиметровый теплоизоляционный слой. Способ гарантирует высокие теплоизоляционные показатели, а потому довольно неплохо подходит для возведения бани. |
| С облицовкой | Стены выкладываются в половину блока либо в целый блок. Метод отличается от предыдущего лишь тем, что здесь вместо второй параллельной стенки используется облицовочный кирпич. |
Выбор подходящего способа остается за владельцем – основные моменты и последовательность действий сохраняются, поэтому каких-либо проблем в процессе выполнения работы не возникнет.
Важные замечания о швах

Схема кладки стен из керамзитобетонных блоков
Оптимальная толщина швов – 0,6-0,8 см (при необходимости можно до 1 см). В случае использования готовых смесей, толщина швов зачастую уменьшается (информация по этому поводу уточняется в инструкции производителя).
Важно! Чем более тонкими делаются швы между блоками, тем более пластичный раствор надо использовать. Современные пластичные смеси позволяют уменьшать толщину швов до 3-4 мм.
Швы заполняются полностью по методу «вподрезку», для удаления излишков раствора применяется кельма. Также возможен вариант заполнения межблочных швов «впустошовку» — в данном случае шов оставляют свободным примерно на половину сантиметра. К использованию второго метода обычно прибегают, если запланирована отделка стены штукатуркой. Собственно, там, где будут штукатурить, и оставляют свободное от раствора пространство.

Типы швов
Полезные советы до начала строительства
- Перед кладкой первого ряда стены фундамент укрывается гидроизоляционным материалом. Схема проста: поверх основания наносится слой расплавленного битума, сверху укладывается рубероид, разглаживается и придавливается к поверхности. Повторить еще раз. Полученная в итоге двухслойная гидроизоляция будет характеризоваться очень высоким качеством. Может возникнуть необходимость в предварительном выравнивании поверхности основания. Стяжки толщиной до 3 см будет достаточно.
![Баня из керамзитобетонных блоков Баня из керамзитобетонных блоков]()
Гидроизоляция фундамента
- Используйте качественные блоки. Применение сомнительного материала с геометрией, отклоняющейся от утвержденных стандартов, приведет к увеличению расхода связующего материала и в целом снижению эксплуатационных, технических и качественных характеристик готового строения.
Керамзитобетонные блоки
![Баня из керамзитобетонных блоков Баня из керамзитобетонных блоков]()
Размеры керамзитобетонных блоков
- Перед кладкой блока на раствор, разложите ряд «насухо» для т.н. «примерки».
- Подгоняйте блоки только с помощью резинового молотка. Сильно бить, при этом, запрещается – строительное изделие может треснуть и разломиться.
![Баня из керамзитобетонных блоков Баня из керамзитобетонных блоков]()
На фото резиновый молоток для подгонки блоков
- Для распила блоков, в особенности при отсутствии предыдущего опыта их разламывания, используйте болгарку.
![Баня из керамзитобетонных блоков Баня из керамзитобетонных блоков]()
Фото — распил блока болгаркой
- Выбирайте материал для кладки разных участков строения. Так, внешние стены принято возводить из блоков размерами 19х18,8х39 см. Внутренние перегородки можно класть из блоков размерами 19х9х39 см либо 12х19х39 см.
Важно! Перед началом строительства нужно определить оптимальную толщину стены. Чтобы избавить вас от длительных расчетов, сразу приводим подходящее значение: 400-500 мм для центральных регионов. Жителям других климатических зон следует пропорционально уменьшать или увеличивать рекомендованные показатели в соответствии с погодными условиями на местности.

Необходимая толщина стен

Стены из блоков
Нюансы армирования
Как отмечалось, стены из керамзитобетонных блоков, равно как и конструкции из большинства других блочных строительных элементов, армируются через каждые 3-4 ряда. В этом разделе вам предлагается ознакомиться с порядком проведения данного мероприятия, чтобы не возвращаться к нему в будущем.

Как сделать армирование
Чтобы готовое строение было максимально устойчивым и надежным, дополнительному упрочнению подвергаются и другие элементы здания, а именно:

Армирование нижнего ряда кладки

Армопояс

Оконные перемычки
В зависимости от особенностей конкретного проекта, могут армироваться и другие элементы строения – определяется в индивидуальном порядке.
Важное примечание! Технологии армирования и кладки большинства строительных блоков остаются аналогичными. Не стоит пугаться, если изделия, представленные на последующих иллюстрациях, будут внешне отличаться от купленных вами керамзитобетонных блоков. Положения рассматриваемых технологических процессов актуальны.

Арматура

Виды арматуры стальной

Цена арматуры

Классы арматуры
Армирование выполняется с помощью прутьев диаметром от 8 мм (в данном случае по центру блоков выпиливается 2 продольные бороздки размерами 4х4 см по длине арматуры, оставшееся пространство будет заполнено раствором), или сетка (изготавливается из проволоки диаметром 3-5 мм, размеры ячеек – 5х5 см (при обустройстве проемов – 7х7 см), снизу и сверху защищается от коррозии с помощью 2-сантиметрового слоя раствора для кладки), или арматурные каркасы (парные стальные полоски, соединенные проволокой диаметром 1,5 мм, укладываются на слой клея, утапливаются в него и сверху покрываются вторым слоем клея/раствора).

Сетка армирующая кладочная 50х50х4,0мм

Пример армирования блоков
Во втором и третьем случаях особых сложностей не возникает – технология понятна из примечаний в скобках. Армирование же с помощью стальных прутьев заслуживает отдельного рассмотрения.
Таблица. Армирование кладки из блоков
| Этап работы | Описание |
|---|---|
Подготовка штроб для укладки арматуры |
Как отмечалось, штробы в количестве двух штук выпиливаются по центру, т.е. на одинаковых расстояниях от краев блока и его середины.
Рекомендованные размеры штроб указывались ранее. Отличным помощником в этом деле станет ручной либо электрический штроборез, в зависимости от наличия электричества на площадке. Чтобы выполнить работу максимально качественно, можете предварительно сделать разметку, используя для этого подходящие подручные приспособления, к примеру, длинную прямую рейку и маркер. Также рейку можно уложить в центре блока и попросту сделать пропилы вдоль ее боковых краев. |
Очистка штроб |
Обеспыльте внутреннее пространство штроб с помощью щетки-сметки или строительного фена. |
Примерка арматуры |
Вложите прутья в подготовленные штробы и отрежьте по длине. В этом вам поможет болгарка. При отсутствии таковой можете использовать ручной инструмент (ножовку) или другое подходящее приспособление. |
Финишная укладка арматуры |
Закончив с примеркой и прирезкой, достаньте арматуру из штроб и сделайте следующее:
— заполните углубления раствором или клеем для кладки блоков. Используйте тот же вяжущий состав, что и для строительства; — вдавите арматурные стержни в раствор; — избавьтесь от излишков смеси. Благодаря раствору будет обеспечена защита металла от коррозии. |
Для обустройства тонких швов между блоками можно применять упомянутые ранее армирующие каркасы. Выглядит это следующим образом.

Кладка блоков
Схема правильного армирования блочных стен показана на изображении.

Схема правильного армирования блочных стен
Видео – Армирование стен из блоков
Кладка стен
Итак, фундамент готов и укрыт слоем влагозащитного материала в виде связки битум+рубероид, специального гидроизоляционного картона или другого подходящего материала. Можно приступать к возведению стен. Последовательность описана в таблице.
Таблица. Кладка стен из керамзитобетонных блоков
| Этап работы | Описание |
|---|---|
Нанесение первого слоя раствора |
Поверх гидроизоляции фундамента укладывается раствор, выбранный для скрепления керамзитобетонных блоков. Рекомендованные показатели толщины слоя в соответствии с параметрами используемой смеси приводились ранее. На этом этапе вам поможет мастерок. Также для нанесения смеси можно использовать совок либо ковш штукатура с последующим разравниванием мастерком – как вам удобнее. С помощью этого слоя будут нивелированы отклонения от уровня. Если поверхность вашего фундамента ровная, либо вы сделали выравнивание перед этим, пропустите этап. |
Последующая обработка первого слоя раствора |
Нанесенный нивелирующий слой раствора требует дополнительной обработки, сводящейся к насыпке поверх него цементной пыли – это приведет к увеличению показателей несущей способности вяжущих компонентов.
Помимо этого, подобная обработка исключит вероятность погружения строительного блока в сравнительно мягкий раствор – в противном случае блок просел бы и в нанесении нивелирующего слоя не было бы никакого смысла. Насыпьте поверх слоя раствора/клея немного (буквально 1-3 мм) чистого цемента. Вскоре на поверхности образуется несущая пленка. |
Установка первого блока |
Один из наиболее ответственных и важных этапов работы.
Полезный совет! Перед кладкой дайте блокам минуту полежать в холодной воде. Материал насытится влагой и не будет забирать ее из раствора/клея, ухудшая тем самым качество сцепления. Установите первый блок из керамзитобетона строго в углу пересечения будущих наружных стен. Выровняйте изделие с помощью уровня и легких постукиваний резиновым молотком. Аналогичным способом установите блоки в остальных углах будущей бани. После этого удостоверьтесь, что длины диагоналей совпадают, подобно тому, как вы делали на этапе обустройства фундамента. Натяните между угловыми блоками направляющие шнуры для обозначения будущих стен бани – это позволит вам уложить блоки строго по одному уровню. Игнорирование данной рекомендации и попытки выполнения строительства «на глаз» вскоре обернутся вспучиванием, деформацией и разрушением конструкций. |
Последующая кладка углов |
Продолжайте выкладывать угол в соответствии с рассмотренной технологией. На боковые стенки раствор обычно не наносят. Исключения следующие:
— блок, стыкующийся с фронтальной поверхностью перпендикулярно установленных строительных элементов; — нарезанные изделия. Выложив угол примерно до такого размера как на фото, проверьте качество выполненной работы при помощи строительного уровня. Избавьтесь от обнаруженных отклонений, используя для этого резиновый молоток. |
Дальнейшая кладка углов |
Прежде чем приступать к возведению стен, лучше выложить каждый угол хотя бы на 3 ряда. Контролируйте ровность укладки каждого ряда блоков. В этом вам поможет строительный уровень. |
Проверка вертикальности кладки |
Проверяйте вертикальность кладки после обустройства каждого ряда. На этом этапе вам поможет инструмент под названием отвес.
Горизонтальность контролируется шнуром каменщика (причалкой) и уровнем. Этот момент будет освящен далее. |
Кладка стен между углами |
К возведению стены приступайте после укладки нескольких угловых рядов. Для контроля вертикальности кладки используйте порядовку. Инструмент продемонстрирован на фото и представлен простой прямой рейкой с метками по высоте блоков.
Важное примечание! Ряды стены выкладываются от угловых элементов. Дойдя до низа проема под окно, кладка ведется от угла в направлении ближайшего простенка. |
Контроль ровности кладки |
Не забывайте протягивать шнур-причалку между угловыми блоками при выкладке каждого ряда. С помощью этого нехитрого приспособления вам будет проще контролировать ровность укладки строительных элементов в горизонтальной плоскости. Принцип прост:
— натянули шнур; — уложили блок; — выровняли строительный элемент по отношению к веревке и остальным блокам при помощи резинового молотка. |
Видео – Кладка угла из блоков
Видео – Кладка стен из керамзитобетонных блоков
Вы ознакомились с технологией кладки стен из блочных строительных элементов. Не забывайте выполнять армирование в соответствии с полученными ранее рекомендациями.
Важные технологические аспекты кладки стен из керамзитобетонных блоков
Для успешного завершения работы, нужно разбираться в ряде технологических нюансов. Эти моменты будут освящены далее.
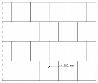
Какой должна быть перевязка керамзитобетонных блоков?
Как отмечалось, строительство ведется по принципу кирпичной кладки: вертикальные стыки между керамзитобетонными блоками в разных рядах смещаются на половину блока.
Минимальный сдвиг в стенах, выложенных из полноразмерных керамзитоблоков – 100 мм. Схема правильной перевязки полноразмерных блоков показана на изображении.

Схема правильной перевязки полноразмерных блоков
Для случаев, когда стена выкладывается с задействованием прирезанных (не полноразмерных) элементов актуальна следующая схема перевязки.

Схема перевязки, когда стена выкладывается с задействованием прирезанных элементов
Как соединить внутреннюю и внешнюю несущие стены?
По возможности возводите внешнюю несущую стену вместе с внутренней. Соединение выполняйте так:

Утепленное соединение
Как соединять внутренние и наружные стены?
Кладку перегородок выполняют после завершения строительства несущих банных стен. Предварительно в них устанавливаются анкеры для обеспечения последующего сопряжения внутренних перегородок и готовых несущих стен. Концы анкеров размещаются в горизонтальных швах наружной стены и швах перегородки. Необходимые отверстия можно сделать дрелью.

Как соединять внутренние и наружные стены
Как резать блоки?
В большинстве ситуаций возведение стен и перегородок из одних лишь полноразмерных блоков не представляется возможным. Резку строительных элементов выполняют по месту, т.е. в соответствии с габаритами пустого промежутка, оставшегося после укладки полноразмерных керамзитобетонных блоков. Для резки подойдет дисковая станковая пила либо электромеханическая пила.

Электрическая алмазная цепная пила
Многие мастера приспосабливают для этого электролобзик. От применения болгарки лучше воздерживаться: чрезмерное количество вырабатывающегося тепла может привести к разрушению строительного элемента. Непосредственно технология резки состоит из 2 этапов: размечаете блок и избавляетесь от лишнего.

Как резать блоки
Полезный совет! Для обустройства проемов старайтесь по возможности использовать не обрезки строительных элементов, а специальные доборные блоки – уменьшите количество порезок и обеспечите более высокое качество выполнения работы.
Видео – Резка блоков
Как класть прирезанные блоки?
Не полноразмерные строительные элементы необходимо вмуровывать в кладку. Лучше делать это на максимальном отдалении от откосов обустраиваемых проемов и углов возводящегося строения. Смещение вертикальных швов при укладке не полноразмерных блоков – минимум 40 мм.
Важно! Вертикальные швы между цельными и нарезанными блоками обязательно заполняются раствором.

Как класть прирезанные блоки
Как обустраивать вертикальные швы?
На большинстве участков вертикальные швы не заполняются раствором. Исключение составляют следующие места:
Как сверлить отверстия в блочных стенах?
Отверстия для труб водоснабжения, розеток и прочих подобных вещей подготавливаются дрелью с простым либо коронарным сверлом.
Важное примечание! При сверлении дрелью, переключите ее на работу в безударном режиме.

Сверление отверстия
Как делать борозды в стенах из блоков?
Борозды для электропроводов делаются так:
При желании можно приобрести или арендовать специально предназначенный для такой работы инструмент – бороздодел.

Работа бороздоделом

Штроборез HILTI

Штроборез WALL CUT

Штроборез (бороздодел)
Важно! По технологии, перед обустройством борозд необходимо выполнить соответствующие расчеты на прочностные показатели. Без таковых разрешается делать лишь углубления, размеры которых не превышают параметры, указанные в следующей таблице.

Таблица. Допустимые параметры борозд
Существует ряд значимых примечаний в отношении вышеприведенных сведений.
Во-первых, параметр максимальной глубины канала следует рассматривать в качестве актуального для любого отверстия, обустроенного в процессе подготовки ниши/канала.
Во-вторых, если вертикальный канал поднимается выше чем на треть помещения по отношению к перекрытию, его можно делать глубиной 8 см и шириной 12 см при условии что показатель толщины стены составляет не меньше 22,5 см.
В-третьих, расстояние между бороздами и углублениями должно составлять от 22,5 см.
В-четвертых, если ниши располагаются на одной стене, между ними нужно выдерживать промежуток, минимум в 2 раза превышающий ширину более габаритной ниши.
В-пятых, для определения максимально допустимой суммарной ширины борозд и углублений нужно умножить длину стены на коэффициент 0,13.
Полезный совет! Делать косые и горизонтальные каналы не рекомендуется. Если они обязательно должны присутствовать, между ними и полом/потолком нужно выдерживать расстояние равное не менее чем 1/8 высоты комнаты. Без выполнения дополнительных расчетов, каналы можно делать глубиной, не превышающей показатели из таблицы.

Таблица. Глубина каналов
Как делать перемычки над проемами?
Существует достаточно много способов обустройства перемычек над оконными/дверными проемами, к примеру, их можно делать из блоков специальной формы или обычного кирпича. Мы же предлагаем вам самый простой, быстрый и удобный в реализации метод, подразумевающий применение готовых рядовых перемычек. Подходят для использования как на внутренних, так и на наружных стенах. Количество перемычек меняется в зависимости от толщины стены и ее функционального предназначения.
Глубину заделки перемычки в стену подбирают с учетом ширины проема. Минимально допустимый показатель – 125 мм. Принцип прост: перемычки укладываются над проемом, из блоков выпиливается часть материала по форме и размеру перемычки, кладка стен продолжается на требуемую высоту.
Своей меньшей стороной перемычка устанавливается на 1,2-сантиметровый слой цементного раствора. В случае использования подобных изделий временные монтажные опоры, как правило, не применяются.
Технология укладки перемычки продемонстрирована на фото.

Технология укладки перемычки
На этом же фото виден теплоизоляционный вкладыш. Его можно сделать из минеральной ваты. Рекомендованная толщина слоя – 80-120 мм. Смонтировав набор балок-перемычек, прочно свяжите их вязальной проволоки. Она обеспечит правильное положение элементов конструкции до момента обустройства верхлежащего ряда.
Смонтированные перемычки сразу начинают выполнять несущую функцию. В продаже доступны изделия, высота которых соответствует высоте блоков, что позволяет минимизировать количество подрезок. При этом поверхность стены будет образовывать с перемычкой единое ровное основание, что позволит максимально качественно выполнить последующую отделку, например, с использованием штукатурки.

Схема установки перемычки

На фото лотковые блоки разных размеров

Таблица армирования U-образных блоков и подбор их количества

Общая схема сборной перемычки из U-образных блоков

Изготовление перемычки

Пример установки опалубки под перемычку

Перемычка в сборе. С внешней стороны прокладывается утеплитель

Залитая бетоном перемычка

Пример кладки стен поверх перемычек

Пример сооружения с оконными перемычками, выполненными по рассмотренной технологии
Если не сможете найти в продаже подходящие перемычки, можете сделать их самостоятельно, например, на основе уголков, придерживаясь рекомендаций из следующего видео.
Видео – Устройство перемычек над проемами своими руками
Вы ознакомились со всеми технологическими аспектами кладки стен из керамзитобетонных блоков. При желании можете использовать это же руководство и при работе с блоками из других материалов – строительство ведется по тем же принципам.

Пример перемычек, выполненных с использованием уголков
Инструкция по обустройству перекрытий
Как правило, помимо нижнего яруса, баня имеет как минимум чердачный полуэтаж, как максимум – 1 или большее количество дополнительных верхних этажей. Для разграничения ярусов обустраиваются перекрытия. Как межэтажные, так и чердачные перекрытия можно делать, следуя положениям одной и той же технологии.
С инструкцией по самостоятельному монтажу данного элемента конструкции вам предлагается ознакомиться далее.
Один из самых популярных вариантов межэтажного перекрытия – железобетонная плита. Но мы от этого варианта откажемся. Во-первых, финансовые, трудовые и временные затраты на его обустройство будут нецелесообразно высокими. Во-вторых, придется выполнить множество расчетов, чтобы определить нагрузку, создаваемую перекрытием, и понять, смогут ли стены и фундамент бани выдержать эксплуатацию в подобных условиях.
В подобных условиях гораздо целесообразнее прибегнуть к использованию деревянного межэтажного перекрытия. Конструкция относительно проста в обустройстве и возводится за меньшее время при сравнительно небольших финансовых затратах (если сопоставлять с железобетонной плитой).

Пример перекрытия для керамзитобетонной постройки

Конструкция перекрытия из пустотелых керамзитобетонных блоков
Из чего делать перекрытие?
Для обустройства перекрытия лучше всего использовать сухую хвойную древесину, предназначенную специально для применения в подобных условиях (материал должен соответствовать стандартам строительной отрасли – уточните у продавца наличие сопутствующих документов, подтверждающих этот факт).
Полезный совет! При желании можете потратить дополнительные средства и сделать перекрытия с МЗП. Специалисты в области строительства зачастую называют подобные конструкции «скелетами». Изделия характеризуются высокими показателями прочности и несущей способности, обеспечивают эффективное скрепление частей конструкции и выпускаются длиной до 12 м. Ввиду того что перекрытие в большинстве случаев рекомендуется делать поперек по отношению к строению, т.е. укладывать концами на длинные стороны здания (чтобы меньше прогибалось), указанной длины, раз речь идет о бане, в подавляющем большинстве случаев будет достаточно.
С характеристиками разных пород древесины вы можете ознакомиться в следующей таблице.

Таблица. Свойства пород древесины
Межэтажное перекрытие одновременно является балками потолка нижнего яруса и лагами пола верхнего этажа.

Схема перекрытия

Варианты деревянных перекрытий

Межэтажное перекрытие по деревянным балкам

Перекрытие. Фото

Крепление балок перекрытия

Деревянные балки

Фото — крепление балок перекрытия

Настил чернового покрытия
Перед использованием бруса по назначению, его нужно обязательно пропитать антисептиком и антипиреном. Данные средства повышают устойчивость материала к гниению и огню. Участки балок, опирающиеся на стены из керамзитобетонных блоков, надо просмолить и обернуть рубероидом для обеспечения эффективной защиты от пагубного воздействия влаги – без подобной обработки древесина попросту сгниет и прослужит конструкция крайне мало.
Рубероид крепите любым подходящим способом. Крепление осуществляйте степлером или гвоздями с широкой шляпкой. Обратите внимание, что для гидроизоляции используется два слоя рубероида, причем длина слоя изоляции должна составить не менее 25 см, а за внутреннюю границу стены рубероид должен выступать на 3 см.

Гидроизоляция торцов балок перекрытия

Рубероид выступает за внутреннюю границу стены
Теплоизоляцию перекрытий, разделяющих помещения с примерно одинаковой температурой, можно не делать. Часть конструкции, разделяющая, к примеру, парилку и вышерасположенную комнату или обогреваемый этаж и чердак утеплять надо обязательно.
Гидроизоляция перекрытий выполняется на участках, перекрывающих помещения с увеличенным уровнем влажности: помывочная, парилка и т.д. Рекомендации в отношении обустройства утеплителя, гидроизоляции и других защитных слоев приводились ранее в соответствующем материале нашего сайта. Инструкция посвящена устройству потолка, но для деревянных перекрытий рекомендации остаются аналогичными.
Важно! При выборе сечения бруса для обустройства перекрытия учитывайте, прежде всего, размер пролета: сечение балки должно соответствовать минимум шестнадцатой части от упомянутого показателя. Дополнительно нужно учитывать нагрузку. Рекомендации в отношении этих нюансов приведены в таблице.

Выбор параметров балок и расстояния между ними в зависимости от ширины пролета
Определившись с оптимальной породой древесины и необходимыми эксплуатационно-техническими характеристиками бруса, приступайте непосредственно к этапу обустройства перекрытия.
Обустройство перекрытия
Мы предлагаем самый простой вариант размещения балок перекрытия. Многие специалисты рекомендуют предварительно выпиливать проемы для бруса в блоках верхнего ряда стены, но это долго и трудоемко. Гораздо проще сделать так, как на нижепредставленном изображении.

Обустройство перекрытия
Здесь балки выполнены из сбитых досок, но смысл остается таким же. Технология элементарная:
На изображении видны промежуточные балки, предназначенные для упрочнения конструкции. Используются при необходимости. Выводы о целесообразности их применения делаются еще на этапе составления проектной документации. Параметры балок, за исключением длины, обычно соответствуют характеристикам основных элементов. Скрепление выполняется подходящим способом. В представленном примере это металлические уголки и саморезы.

Схема кладки стены с облицовкой

Крепеж для балки перекрытия

Укладка балки перекрытия. На схеме балка деревянная двутавровая

Фиксация балки в креплении

Рекомендуемые расстояния

Схема укладки балок перекрытия

Крепление на стене

Зелеными точками показано месторасположение саморезов

Внешний вид зафиксированных балок перекрытия

Поперечные балки

Кладка блоков
Подробную информацию о дальнейшем обустройстве перекрытий вы можете получить в соответствующей публикации нашего сайта. Информация ориентирована на потолок, но ее актуальность в случае с деревянными перекрытиями из бруса сохраняется.
В аналогичной последовательности делаются перекрытия между другими этажами и чердаком.
Видео – Деревянное межэтажное перекрытие
Что делать дальше?
«Выгон коробки» завершен. Каковы дальнейшие действия?
- Во-первых, вам надо сделать крышу.
- Во-вторых, необходимо выполнить этапы, связанные со внутренним обустройством бани.
Рекомендации по успешному проведению упомянутых мероприятиях подробно разбирались в соответствующих публикациях нашего сайта.



