Красивые бани из бруса проекты
Иметь собственную баню – заветная мечта большинства людей, которым посчастливилось обзавестись хорошим загородным участком. Традиционно в наших краях баня рассматривается вовсе не только, как комплекс санитарно-гигиенических помещений – для ежедневных надобностей широко используются ванные или душевые кабинки. Но вот настоящий заряд бодрости и здоровья никакая навороченная сантехника не даст, и у бани в этом плане конкурентов просто нет.

Красивые бани из бруса проекты
Но это будет справедливым только при условии, что постройка под баню выполнена с соблюдением всех правил и с применением экологически чистых материалов. И здесь безусловное лидерство держит натуральная древесина – только в такой бане можно в полной мере создать настоящую целительную атмосферу и камфорный микроклимат. Традиционным для России всегда являлся бревенчатый сруб. Но сегодня его позиции стали теснить постройки из бруса – при сохранении всех уникальных природных свойств древесины, у них заметно выше скорость строительства и степень утепленности. А декоративные качества этого строительного материала позволяют даже без особых отделочных работ сразу получать очень красивые бани из бруса проекты которых, для предварительного ознакомления, приведены в настоящей статье.
Чем привлекают постройки из бруса?
Брус, как основной стеновой материал для жилых домов и бань, стал использоваться в наших краях сравнительно недавно, но очень быстро обрел популярность. Это неудивительно – материал и в самом деле дает множество преимуществ и при строительстве, и при эксплуатации зданий:

Брус, как строительный материал, активно завоевывает лидирующие позиции
Для строительства жилых и хозяйственных построек может применяться три типа бруса:
Обычный строганый брус
Такой стройматериал получают путем обрезки бревен в заданный размер по ширине и высоте – он может иметь либо квадратное, либо прямоугольное сечение. Обычно для возведения стен применяют строганый брус толщиной от 150 до 200 мм.

Штабель строганого бруса
У этой разновидности только одно преимущество перед другими – невысокая цена. Во всем остальном строганый брус проигрывает своим «конкурентам»:

Последствия усыхания и усадки
Впрочем, для небольшой бани, и при не слишком богатом бюджете, выделенном на ее строительство, такой вариант может быть вполне оправдан. Безусловно, чтобы баня прослужила долго, к выбору строганого бруса нужно отнестись с особой тщательностью.
Профилированный брус
Этот материал – уже совсем другого уровня качества. Брусьям на специальном оборудовании придается особая форма и точные геометрические размеры, с таким расчетом, чтобы детали идеально подходили одна к другой. Понятно, что процесс строительства от этого только выигрывает.

Фрезерная линия по изготовлению профилированного бруса
Хотя он также вырабатывается из того же сырья – цельной древесины, но обычно добросовестные производители перед отправкой заготовок на фрезерные линии, доводят уровень влажности древесины до требуемых показателей – не выше 22%, иначе высокого качества обработки поверхностей деталей не достичь. Это, в свою очередь, значительно уменьшает вероятность рассыхания готового бруса, уменьшают усадку, хотя в полной мере от этих недостатков в данном случае уйти все же не удается.

Несколько вариантов профилей бруса
Существует множество различных профилей такого бруса – от единичных шипов-пазов на монтажной плоскости, до частой «гребенки». Такие формы позволяют упростить процесс утепления стен. При профилях «шип-паз» обычно углаживается ленточный утеплитель, например, джутовый войлок. Даже если здание даст значительную усадку, этот слой не позволит появиться сквозным щелям.

Утеплительная прокладка между двумя профилированными брусьями
При профиле в виде частой «гребенки» утеплитель вообще не используется, правда, повышаются требования к влажности исходного материала, так как при усушке геометрия таких зубьев может измениться, и процесс монтажа бруса будет крайне затруднен.
Здание из профилированного бруса также нуждается в периоде усадки, но в остальном строительство из такого материала выглядит оптимальным по объединенному критерию «цена — качество». Обычно для бань применяется профилированный брус толщиной от 100 до 150 мм.
Клееный профилированный брус
Этот материал смело можно отнести к самому высококачественному. Он сочетает в себе все достоинства обычного профилированного бруса, но лишен его недостатков.
Дело в том¸ что массив, идущий на фрезерную линию, изготовлен из идеально подогнанных, высушенных на специальном оборудовании и надежно склеенных между собой ламелей, которые располагают таким образом, чтобы исключалась пространственная деформация древесины. Таким образом, под фрезу попадают заготовки, которые уже имеют оптимальный уровень влажности. Точность обработки становится такой, что никакой дополнительной внешней отделки стены не потребуют.

«Чемпион» по качеству и цене — клееный профилированный брус
Такой брус не даст коробления, на нем практически не появляется заметных трещин. При строительстве бани не потребуется технологического перерыва для усадки – ее значение будет не настолько велико, чтобы делать какой-либо значительной паузы.
Единственный «минус» этого материала – высокая цена. Но если средства позволяют, то клееный брус можно считать лучшим выбором для строительства дома или бани. Правда, при этом нужно учитывать и вид клея, который использовался при изготовлении материала. Для бани или жилых помещений следует выбирать группу безопасности FC0, в крайнем случае — FC1.
Несколько слов о фундаменте бани из бруса
Перед тем как переходить к рассмотрению интересных проектов бань из бруса, стоит, чтобы не повторяться, сказать несколько слов о фундаменте для них.
Качественный просушенный брус нельзя отнести к очень тяжелому материалу, поэтому нет нужды устраивать мощный фундамент.
По большому счету, может подойти любая разновидность основания. Выбор, скорее, будет базироваться не на прочностных качествах того или иного фундамента, а на особенностях грунтов и на степени пересеченности участка, отведенного под строительство.
Если выбор сделан в пользу ленточного фундамента, то большого заглубления не потребуется. Обычно достаточно 300 ÷ 500 мм вглубь. Но вот высота цоколя имеет значение, и для бани оптимален подъем над уровнем земли порядка 400 ÷ 500 мм. Для ленты такой суммарной высоты потребуется весьма большое количество материалов – цемента, песка, ПГС и т.п., поэтому ленточный фундамент выглядит, скорее, избыточной мерой. Даже если баня предполагает мансарду или второй этаж, с задачей справятся более легкие виды основы.

Столбчатый фундамент для бани из бруса
Очень распространен именно для бань столбчатый фундамент. Опоры возводятся на подготовленных бетонный основаниях из блоков или кирпича на нужную высоту. Установку столбов планируют по периметру здания с шагом примерно 2000 мм, на пересечениях капитальных межкомнатных перегородок. Нередко требуется усиление и в месте размещения банной печи.
Столбчатый фундамент применим не всегда – он не будет надежен на глинистых, пучистых грунтах или при близком расположении верховодки.
Значит, в таком случае лучше вести строительство на свайно-винтовом фундаменте. Расстановка опор – примерно такая же, но их конструкция существенно отличается.

Примерная схема свайно-винтового фундамента
Опоры – это стальные трубы с лопастью-винтом, вкручиваемые в грунт на глубину ниже уровня промерзания. Верхняя часть опор выравнивается под единую горизонтальную плоскость, связывается ростверком, который становится надежной основой для нижнего венца постройки. Другой вариант трубы сязаны перемычками, а брус нижней обвязки крепится при этом к монтажным площадкам опор.
Удобство такого метода – в быстроте оборудования фундамента, в возможности проведения строительства даже на достаточно крутом склоне.
Фундамент бани и слив планируются одновременноКакой бы фундамент ни был выбран, его конструкция должна быть согласована с системой отвода израсходованной воды. Как правильно исполнить фундамент бани со сливом – в специальной статье нашего портала.
Интересные проекты бань из бруса
Теперь, собственно, можно рассмотреть несколько интересных проектов бань из бруса – от самых маленьких и до внушительных построек, сочетающих в себе и иные функции.
Проектированием деревянных бань занимается множество специализированных компаний, которые, зачастую, предлагают не только разработку необходимых для строительства чертежей, но и изготовление полного комплекта требуемых деталей со всеми соединительными узлами, а в ряде случаев – и услуги по сборке здания на отведенном участке.
Миниатюрная баня 3 × 4 м
Даже на таком маленьком «пятачке» можно уместить вполне функциональную баню из бруса. Мало того, кроме самых основных помещений, необходимых в данной постройки, остается еще и место для небольшой террасы, на которой летом приятно провести время после банных процедур.

Один из самых простых в исполнении вариантов
Для такой постройки вполне достаточно 8 опор фундамента, расположенных по периметру.
Взглянем на план помещений:

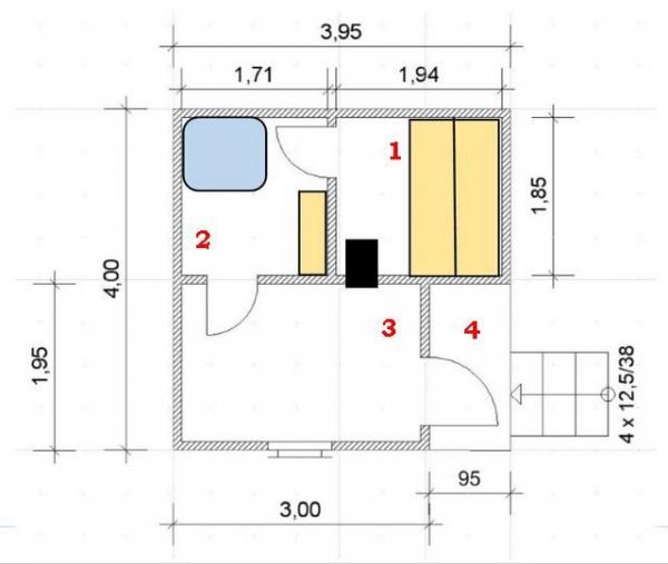
Планировка помещений в бане 3 × 4 м с террасой
Понятно, что внутри – тесновато, но для семейного пользования вполне подойдет. Парилка (1) площадью 2,95 м² с полатями, длина которых позволяет вытянуться во весь рост. Моечная (2) – небольшая, 2,4 м², но достаточная для размещения душевого поддона или даже душевой кабинки. Если это кажется слишком тесным, то перегородку между парилкой и моечной можно и не делать – как показано в объемной проекции:

Место, где можно установить внутреннюю перемычку между парной и моечной
Предбанник (3) площадью в 5,5 м позволяет не только свободно подготовиться к банным процедурам, но и установить столик и несколько табуреток. Сюда же, в предбанник, выведена топочная часть печки-каменки. В летнее время расслабиться после бани можно на открытой веранде.
Базовым проектом предусмотрено использование в качестве основного материала профилированного бруса сечением 100 × 150 мм с утеплительной джутовой прокладкой. Общая высота в помещениях – 2,15 м, а всего здания в коньке – 3,65 м.
Стропильная система – из бруса 50 × 100 мм, кровля по проекту – ондулин выбранной расцветки.
Пол – утепленный двуслойный, верхнее непротекающее покрытие – из шпунтованной доски 27 мм. Потолок также утеплен минватой и подшит вагонкой. Парилка покрыта фольгированным утеплителем, а затем облицована осиновой вагонкой. Утепление пола и потолка – по 50 мм базальтовой ваты.
Два окна – в предбаннике, 800 × 800 мм, и вентиляционное – в моечной, 400 × 400 мм. Оба окна – с двойным остеклением.
Полки в парилке выполнены из осиновой доски.
Примерная стоимость такого комплекта – порядка 200 тысяч рублей с услугой сборки, но без учета печи, дымохода, их установки и монтажа прохода через кровлю. При желании, можно выбрать более толстый брус или иное кровельное покрытие, увеличить высоту сруба, толщину утеплительного слоя, внести другие изменения, но стоимость, естественно, повысится.
Баня 4 × 4 м
Еще один проект для примерно такой же площади застройки. Внешне от верхнего отличается лишь тем, что полезная площадь помещений увеличена за счет уменьшения веранды – стена ступенчато вынесена наружу.

Баня из бруса 4 х 4 м
Но планировка помещений претерпевает значительные изменения, становится более рациональной и удобной.

Помещения уже более просторные
Площадь парной (1) составляет уже 3,6 м², и там можно установить широкие полати, в два, а то и в три яруса. Каменка этому мешать не должна – ее топочная часть так же вынесена в предбанник.
Более просторная моечная (2) позволяет, помимо душевого поддона, установить и лавки для удобства мытья. Есть место и для того, чтобы подвесить опрокидывающуюся купель с холодной водой.
Предбанник (3) вообще превратился практически в небольшую, но полноценную комнату отдыха площадью почти 6 м². Таким образом, вполне хватит места, чтобы установить, к примеру, мягкий уголок и стол — для чаепития после банных процедур.
В остальном же материал, отделка, утепление – по аналогии с проектом, показанным выше. Материала в данном случае уходит больше, и базовая стоимость такой бани поднимается уже до уровня 220 ÷ 240 тысяч.
Баня из бруса 4 × 4 с мансардным помещением
Маленький размер участка для застройки – это вовсе не «приговор». Можно отыскать проект, в котором реализованы немалые возможности – например, мансарда с жилой комнатой над банными помещениями.

Баня 4 х 4 метра может иметь и мансарду
Несмотря на кажущуюся громоздкость конструкции, она вполне устойчива, обладает необходимым запасом прочности, и, вместе с тем, не требует мощного фундамента – вполне достаточно девяти свай (столбов).
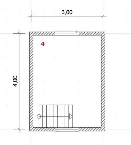
Посмотрим на планировку помещений:

План первого, банного этажа
Парная (1) и моечная (2) одинаковы по площади – примерно по 4 м². Предбанник (3) – достаточно просторен, около 8 м², но частично занят лестницей на второй этаж, и, скорее, играет роль прихожей. Лестница длиной в плане 1,4 м имеет девять деревянных ступеней, которые одни краем опираются на стену.

Второй этаж — мансарда, полностью отдан под комнату отдыха
Но зато весь второй этаж — мансарда (4) – в полном распоряжении хозяев для оборудования комнаты отдыха. Здесь вполне хватит места и для стола со стульями, и для дивана или кровати.
В типовую комплектацию подобного проекта бани входит:
Ориентировочная стоимость подобного комплекта со сборкой – около 240 – 250 тысяч.
Баня из бруса с эркером
Очень выигрышно смотрятся брусовые бани, в архитектурный ансамбль которых включен эркер – выступающая наружу часть фасада с окнами. Такое дополнение и визуально, и по факту расширяет полезное пространство бани, дает больше вариантов планировки внутренних помещений, даже без особого увеличения общей площади застройки.

Очень красивым и функциональным архитектурным дополнением бани становится эркер
Кроме того, окна эркера (кстати, дословно это обозначает «фонарь») дают отменную освещенность комнате отдыха, создают особо уютную обстановку.
На приведённых ниже схемах – примеры различной планировки в одной и той же постройке из, профилированного бруса, 5 × 3 м с выступающим на 0,8 м эркером.

Первый вариант планировки — без прихожей
В первом, самом простом варианте общий вход в баню (4) расположен с левой стороны. Сразу за дверью – просторная комната отдыха (3) площадью 10,5 м². Трех окон на эркере вполне достаточно для ее естественного освещения. Оборудована просторная парилка (1) – 4 м², проход в которую осуществляется через моечную (2), где установлен душевой поддон, и имеется вентиляционное окно.
С точки зрения комфортности – наверное, не совсем удобно сразу с улицы попадать в чистое помещение предбанника-комнаты отдыха. Поэтому в тех же стенах можно реализовать иные типы внутренней планировки.

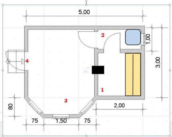
Второй вариант — с прихожей и санузлом
В данном варианте вход (4) расположен на фасадной части, справа от эркера, и ведет в достаточно большую, 2 м², прихожую (5). Площадь общей комнаты отдыха (3) немного уменьшена, до 7,5 м², но это за счет появления дополнительных удобств. Появился изолированный санузел (6) с вентиляционным окошком. Площадь парной (1) осталась такой же, 4 м², моечная – несколько укоротилась, на 0,4 м, но места для размещения нужного сантехнического оборудования все равно достаточно.

Третий вариант — с входом с тыльной стороны
Можно предложить и еще одну, наверное, самую удачную компоновку помещений. Вход (4) расположен сзади. Для прихожей – тамбура (5) слишком большой площади не требуется – в этом варианте она уменьшена до 1,4 м. Но это дало возможность увеличить размер моечной (2) – она стала достаточно просторной, переместившись при этом на другую сторону постройки. Парилка же (1) остается по габаритам без изменений – это 4 м² площади, то есть там свободно может одновременно находиться 2 ÷ 3 человека. Предусмотрен и санузел (6). Площадь комнаты отдыха осталось той же – 7,5 м².
Реализация подобных проектов в базовом исполнении, в зависимости от степени сложности схемы, насыщенности ее дополнительными помещениями и оборудованием, оценивается от 250 до 380 тысяч рублей без учета фундамента. При этом используется профилированный брус 150 × 100, осиновая древесина для облицовки парной, качественное утепление пола и потолка, полный комплект деревянных дверей и окон с двойным остеклением, обшивка пола строганой доской толщиной 37 мм. Высота потолков – 2,2 м, обшивка – натуральная вагонка.
Большая баня из бруса
Если территория участка большая, то при наличии необходимых средств можно реализовать более масштабный проект. По большому счету, здесь уже несколько стирается грань между, собственно, баней и неплохо оборудованным дачным домом.

Эту баню вполне можно рассматривать, как гостевой дом
Как видно, под одной общей крышей расположились закрытые помещения сруба из профилированного бруса, и просторная терраса.

Есть все необходимое для комфортного отдыха
Проект предусматривает все для полноценных банных процедур – парилку (1) площадью 3,9 м² и просторную моечную комнату (2) 5,2 м², куда можно установить не только душевую кабинку или поддон, но и деревянную купель. Предусмотрен санузел (5). Для большего комфорта вход в банную зону осуществляется через тамбур (4).
В распоряжении хозяев – просторный холл, комната отдыха, общей площадью почти 12 м², куда ведут два входа – один – непосредственно с улицы, с торцевой стороны здания (8), а второй – через крытую террасу, с фасада (9). Сама терраса – весьма внушительна по размерам, более 15 м², что позволяет разместить на ней целый гарнитур садовой мебели. Летом, таким образом, она превращается в еще одно полезное помещение для уютного отдыха.
Но главная «фишка» проекта в том, что он предусматривает и просторную кухню. Она разделена простенком на две зоны. В дальней находится топочная часть банной печи, там же можно организовать хранение дров и разнообразных хозяйственных запасов. В передней части кухни, площадью более 10 м², вполне хватит места и для плиты, и для мойки, и для кухонной мебели. Таким образом, это еще одна функциональная комната.
По сути, летом в такой «бане» вполне может проживать небольшая семья – площади хватает, все под рукой, обеспечены необходимые «удобства».
Стоимость такого проекта может быть различной – она зависит от выбора основного стенового материала, типа фундамента, вида кровли и многих других критериев. Понятно, что столь функциональное строение уже не может иметь относительно невысокую цену. Так, если избран сухой профилированный брус 142 × 145 мм с соответствующим утеплением, свайно-винтовой фундамент, и самая простая кровельная конструкция под евро-рубероид, то ориентировочная цена комплекта материалов будет в районе 630 ÷ 650 тысяч рублей без услуг строителей.
Баня из клееного бруса
Еще один интересный проект – баня из клееного профилированного бруса, создатели которой дали ей романтическое название «Фиона». Благодаря строгой прямоугольной форме строение не смотрится слишком большим, хотя площадь все же занимает немалую – 8,3 × 6,9 м.

Небольшая с виду, но очень функциональная баня
В этой бане тоже все предусмотрено таким образом, что ее можно считать и вполне достойным загородным домом для летнего проживания. Ну а по, собственно, банным возможностям, она превосходит все уже рассмотренные выше проекты.

Внутренняя планировка бани
Очень просторная парилка (1) площадью более 5 м² дает возможность полноценно использовать ее сразу нескольким посетителям. Предусмотрено отдельное помещение (2) под бассейн-купель, причем размер самого бассейна может доходить до 2 × 2. Рядом расположена просторная моечная комната (3), из нее дверь ведет в санузел (4).
Комната отдыха (3) имеет площадь 18 м², чего больше чем достаточно, чтобы разбить ее на кухонную и жилую зоны. Площадь прихожей-тамбура (6) дает возможность не только использовать ее по прямому назначению – здесь вполне хватит места для организации хранения необходимых для банных и бытовых нужд запасов. Сюда же выведена и топочная часть печки-каменки, в случае ее использования. Впрочем, можно установить и электрическую банную печь – это тоже предусматривается проектом.

Фотография реализованного проекта
В помещениях – хорошее освещенность за счет вытянутых по вертикали, высоких и больших по площади окон, установленных в холле и комнате с бассейном.
Производители комплектуют баню всем необходимым. Так, в общую стоимость проекта входит:
Примерный срок строительства такой бани бригадой специалистов, до состояния полной готовности, «под ключ» — от 3 до 5 месяцев, в зависимости от особенностей участка и наличия дополнительных опций проекта. Базовая цена, в которую включены все виды работ, а также электрооборудование (силовые щиты, освещение парилки, электрическая печь) – порядка 2,15 миллиона рублей.
И в заключение, интересная видео-подборка проектов красивых бань из бруса.
