Купель для бани своими руками
Банные процедуры подразумевают не только непосредственное посещение парной, но и охлаждение тела в прохладной воде. В банях большой площади для этой цели принято обустраивать полноценный бассейн, который может располагаться как внутри здания, так и на веранде или рядом со входом. Купель – это некая уменьшенная копия бассейна, которая может как дополнять его, так и полностью заменять.
Виды купелей и их конструкция
На Руси крестьяне для водных процедур использовали простую бочку, ну а сегодня благодаря разнообразию и доступности строительных материалов можно построить купель любой формы, габаритов, а также установить различные приспособления, которые сделают процедуру омовения еще приятнее.
Купель может быть круглой, овальной, угловой, квадратной, прямоугольной или многоугольной. Установка допустима в моечном отделении бани, внутри застекленной веранды/террасы, под отдельным навесом или просто рядом с баней на участке.
Кроме того, купелью называют обливное ведро. Его крепят к стене и подключают к водопроводу. Внутри емкости находится поплавковый механизм, который предотвращает переполнение. Такая купель самая бюджетная и компактная из всех имеющихся моделей.
Таблица. Классификация купелей по материалу изготовления
| Материал | Описание |
|---|---|
Дерево |
Используется кедр, лиственница, дуб. Сверху материал обрабатывается воском или иным безопасным защитным составом, нивелирующим пагубное воздействие влаги на древесину.
Деревянные купели не только шикарно выглядят, но и являются экологически чистыми, оказывают положительное воздействие на здоровье пользователей. Иногда деревянные изделия комплектуются вкладышем из ПВХ. Рекомендуется во избежание рассыхания материала не менее одного раза в неделю наполнять купель водой, а после процедур закрывать емкость крышкой / пленкой / деревянным настилом. Также необходимо обеспечение хорошей вентиляции дна, что вносит свои особенности в процесс установки изделия. Стоимость деревянных купелей от 22 до 80 тысяч рублей. Сделать такую емкость своими руками значительно дешевле. |
Чугун или нержавеющая сталь |
Купели выполняются в виде чана. Чаша может быть установлена в котловане, на треногах, ножках-опорах, подвешена на цепях, а также существуют варианты с расположением купели над дровяной печью.
Дно купели выстилается камнями или деревянными щитами. Чугунную чашу непросто установить своими силами из-за большого веса. Сварные конструкции относительно более легкие, но менее привлекательные внешне. Сама чаша обойдется в 130-180 тыс. руб., тренога, скамейки и другие девайсы еще в 30-50 тысяч. Сделать своими руками возможно только сварную стальную чашу, если есть опыт работы со сварочным аппаратом. |
Бетон |
Долговечная конструкция, максимально напоминающая бассейн. Такая купель обустраивается только в котловане. Снаружи бетонные стенки купели окрашивают резиновой краской или отделывают керамической плиткой, мозаикой, специальной пленкой для бассейнов.
Обустройство требует грамотного составления проекта с указанием местоположения систем подачи/слива воды, физической силы и хотя бы минимальных знаний о принципах устройства бетонных монолитных емкостей. |
Пластик (полипропилен) |
Полипропиленовые емкости производятся в 2х вариантах – с толщиной стенки 5 и 8 мм. Вес и цена у таких купелей относительно невысокие. Чаша купели может быть усилена ребрами жесткости или металлокаркасом. Установка купелей из пластика будет рассмотрена в отдельной статье. |
Деревянная купель. Собираем чашу своими руками

Деревянная купель
Чтобы сделать чашу самостоятельно, в первую очередь, стоит оценить количество свободного места в помещении или на прилегающей к бане территории. Купель будет укомплектована сливным сифоном со сливом-переливом и подключена к водопроводу, чтобы не носить воду ведрами вручную. Выбирайте место, наиболее удобное для прокладки коммуникаций – канализационной и водопроводных труб, а при желании дополнить купель гидромассажем или твердотопливной печью для подогрева воды стоит предусмотреть возможность прокладки электрокабелей и трубы дымохода.
Ознакомьтесь с предложенными проектами деревянных купелей. Подберите вариант устраивающего объема, высоты и формы.

Одноместная овальнаяя купель

Чертеж деревянной овальной купели (в данном случае размеры проставлены в дюймах)

Деревянная ванна купель с гидромассажем

Круглая деревянная купель

Деревянная купель для бани (треугольная)

Купель угловая

Купель квадратная

Купель прямоугольная
Все купели собираются из панелей толщиной от 35 до 50 мм, причем предусмотрено сразу два варианта скрепления элементов:
Для примера рассматривается сборка чаши способом шип-паз. В процессе работы потребуются:

Заготовки для сборки купели
Шаг 1. Сначала необходимо собрать дно из шпунтованных досок. Их выкладывают на рабочей поверхности в ряд, промазывают клеем шпунты и соединяют в прямоугольный щит, фиксируют струбцинами и оставляют в таком положении до высыхания.

Распиловка

Снятие фаски

Выкладывание заготовок

Нанесение клея

Переворачивание заготовок для склейки

Фиксация щита

Шлифовка высохшего щита
Шаг 2. Подготавливают доски для стенок. При помощи фрезы по бокам досок делают с одной стороны полукруглый продольный паз, с другой – такой же формы выступ. Далее вырезают поперечные пазы в нижней части досок шириной 42 мм и глубиной 20 мм. Расстояние от торца до нижнего края паза соответствует высоте дна купели вместе с ножками.

Пример изготовления стенок купели (развертка)
Шаг 3. Щит из досок высох, можно формировать дно. Карандашом чертят на поверхности щита овал или круг нужных размеров, а потом обрезают лишнее электролобзиком. С нижней стороны прикручивают шурупами два бруска на расстоянии друг от друга – это будут ножки купели.
Шаг 4. В днище, ближе к стенке, просверливают отверстие под слив, вставляют трубку, снизу прикрепляют ее к сифону, который прикручивают саморезами к доскам. Участок примыкания сифона к дереву промазывают герметиком.
Шаг 5. Формируют стенки купели: доски аккуратно собирают вокруг днища, вставляя выступы в пазы.

Стенки купели

Нанесение герметика в паз

Крепление доски к днищу

Соединение стенок и дна

Схема формирования купели

Сборка купели
Чтобы упростить работу, по периметру дна следует провести линию разметки на расстоянии 20 мм от края. Это позволит ставить доски равномерно по всей окружности. Последнюю доску нужно вставлять сверху и забивать молотком, чтобы она встала на место.
Шаг 6. После завершения сборки стягивают стенки купели металлическим хомутом в нижней части, а его края прибивают мелкими гвоздиками к доскам и затягивают болтом. Точно так же устанавливают обручи вверху и посередине изделия.

Ремни для стягивания досок. Когда будут зафиксированы металлические хомуты, стропы будут сняты

Стягивание хомута

Второй хомут
Шаг 7. Внутреннюю и наружную поверхность купели тщательно ошкуривают наждачной бумагой. Стенки должны быть абсолютно гладкими.

Купель внутри — фото
Шаг 8. Готовую купель устанавливают на постоянное место, после чего шланг сифона соединяют с канализационной трубой или выводят к сливному отверстию.

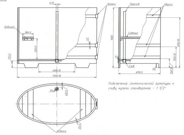
Чертеж овальной купели

Чертеж круглой купели
На этом изготовление и монтаж купели считается завершенной. Если есть желание, можно смонтировать внутри лавочку и установить снаружи приставную лесенку.

План изготовления купели
Установка лавочек в купели

Круговое расположение лавочек

Симметричное расположение лавочек в купели
Для изготовления лавочки могут использоваться те же доски, что и для стенок.
Шаг 1. Начинают работу с разметки под опоры: определяются с размерами сиденья и ставят на днище метки карандашом. Если позволяют размеры купели, лавочки устанавливаются по периметру стенок, и тогда метки под опоры ставят вдоль стенок через каждые 40-50 см. В маленьких купелях устанавливают 2-4 опорных стойки на таком же расстоянии друг от друга. Для стоек берут брус 40х40 мм и длиной до 20 см.
Шаг 2. Крепят опоры саморезами к стенкам, углубляя шляпки на несколько миллиметров в доски.
Шаг 3. В зависимости от конфигурации лавочки края досок обрезают под углом 45 градусов или закругляют при помощи лобзика для плотного прилегания к стенкам. После обработки краев доски скрепляют попарно поперечными рейками и шлифуют.
Шаг 4. Готовые сиденья укладывают плашмя на опорные стойки, стыкуют смежные торцы и прикручивают шурупами, обязательно утапливая шляпки в дерево. Затем замазывают углубления от шурупов водостойкой шпаклевкой для дерева.

Лавки в купели
Деревянная купель может быть и с подогревом воды. Для этого в емкости часть пространства отгораживают деревянной решеткой и устанавливают специальную герметичную печь.

Купель с вмонтированной печью

Купель из термодерева с встроенной печью
Верхняя часть печки снабжена дверцей, через которую закладывают топливо, а сбоку находится еще одно отверстия для поддува, выходящее наружу. Есть модели с внешним расположением печи, когда в купели остается только теплообменник. Этот вариант больше подходит для малогабаритных емкостей.

Печь расположена с внешней стороны

Внешняя печь
Самостоятельно изготовить такую печь непросто, особенно для внутренней установки, ведь конструкция должна быть абсолютно герметичной и безопасной. Гораздо надежнее приобрести заводскую модель и установить ее в купель своими силами.

Дровяная печь в комплекте с трубопроводной арматурой

Водогрейная печь для купели
Монтаж обливной купели
Обливная купель представляет собой деревянное ведро с поплавковой системой, закрепленное при помощи кронштейнов на стене бани. Поплавковая система располагается в верхней части ведра, а ее патрубок проходит сквозь стенки емкости и соединяется с гибким шлангом, который подключен к водопроводу или накопительному баку.

Обливная купель

Купель для бани
При заполнении ведра водой поплавок поднимается до определенного уровня и перекрывает струю, благодаря чему вода не выливается через край. Как только уровень воды в купели снижается, поплавок снова открывает отверстие. При отсутствии водопровода емкость наполняется вручную.

Традиционная обливная купель
Самостоятельно сделать ведро из дерева можно, но при отсутствии бондарских навыков этот процесс займет немало времени, да и само изделие будет не таким прочным и красивым, как покупное. А вот установить такую купель вполне по силам даже тем, кто подобного опыта не имеет, поскольку монтаж очень прост. Самое важное – заранее приготовить все необходимое, чтобы в процессе работы не отвлекаться на поиски нужных деталей. Если вы все-таки решили собрать купель своими руками, используйте чертеж.

Схема сборки обливного ведра вид сверху)

Схема сборки обливного ведра
Для облегчения работы нужно вырезать из картона шаблоны по приведенному выше чертежу, и по шаблонам выпилить детали для ведра из досок 100х10 мм. Скрепляют изделие ободами из стальной ленты шириной 50 и толщиной 2 мм. В качестве заклепок для обручей применяют проволоку-пятерку.
Для монтажа купели понадобится:
Для начала нужно определиться с местом и высотой установки купели. Обычно ее крепят в моечной, поскольку там уже оборудован слив и подведена вода. Итак, определяют удобное место для купели, затем рассчитывают высоту крепления: самый высокий член семьи должен стать у стены и вытянуть руки к потолку. Замеряют расстояние от пола к кончикам пальцев и прибавляют высоту ведра. Как правило, высота крепления составляет 2,2-2,5 м.
Оставляют на стене метки для крепления купели при помощи уровня, отмеряют вверх еще 15-20 см и выводят в эту точку водопроводную трубу. Конец трубы соединяют с гибким шлангом. Если планируется наполнять купель вручную, этот этап пропускают. Теперь можно приступать к установке емкости.
Шаг 1. Делают кронштейны из бруса: распиливают брус на заготовки по 40 и 60 см и складывают 2 прямоугольных треугольника. Оба торца длинной стороны спиливают под углом 45 градусов, скрепляют детали саморезами. Все отрезки обязательно обрабатывают рубанком и ошкуривают до гладкости.

Изготовление кронштейнов
Шаг 2. С внешней стороны треугольников набивают планки, как показано на фото, затем скрепляют планки тремя поперечинами.

Схема купели
Шаг 3. На концах выступающих углов кронштейнов просверливают отверстия под болты, которыми будет крепиться купель. По бокам ведра также сверлят отверстия, вставляют емкость между кронштейнами и проверяют, насколько легко она заходит.
Шаг 4. В передней части ведра на самом верху сверлят небольшое отверстие и продевают шнур. В ушко ведра, расположенное в задней части, продевают патрубок поплавковой системы и закрепляют.
Шаг 5. В деревянном каркасе и проделывают отверстия под крепежи, такие же отверстия сверлят в стене по меткам. Приставляют изделие к меткам на стене, наживляют болтами. Еще раз поверяют расположение креплений относительно горизонтали, чтобы исключить перекосы. Далее вставляют и закручивают дюбели, вешают ведро, подсоединяют патрубок к шлангу.

Обливная купель на стене
Изготовление бетонной купели
Если бетонная купель будет находиться внутри помещения, ее проектированием следует заниматься на этапе строительства самой бани. Это обусловлено особенностью конструкции, ведь для такой купели необходим котлован. Обычно глубина котлована равняется 1,5-1,7 м, а ширина и длина зависит от площади помещения и предпочтений владельца бани.

Купель для бани бетонная
Для строительства понадобится:
Шаг 1. Определяют размеры купели и делают разметку для котлована с учетом толщины бетонных стенок – около 15 см. Роют яму нужной глубины, ровняют по вертикали стенки. Поскольку в большинстве случаев откачку воды из такой купели производят насосом, укладка на дне канализационной трубы не нужна. Если же система слива вам кажется более удобной, в стене котлована делают траншею под уклоном в сторону сточной ямы и укладывают в нее пластиковую трубу.

Рытье котлована под купель

Устройство слива
Шаг 2. Дно котлована засыпается песком на высоту 10 см и очень тщательно утрамбовывается. Чтобы облегчить процесс и добиться большей плотности, песок следует обильно увлажнить.
Шаг 3. Арматуру нарезают на куски нужных размеров и укладывают на дно в виде решетки 100х100 мм. Прутья скрепляют тонкой проволокой; под решетку подкладывают кусочки кирпича, обрезки металлических или пластиковых труб, чтобы армирующий слой не лежал на грунте. На стенках котлована решетку крепят скобами из проволоки-пятерки, обязательно оставляя промежуток между грунтом и арматурой 5-7 мм.
Шаг 4. Внутри котлована монтируют опалубку, используя фанерные листы или плотные щиты из досок. Высота щитов должна быть на 15-20 см выше стенок ямы; расстояние между опалубкой и армирующей решеткой равняется 15 см. Конструкцию выставляют при помощи уровнемера и укрепляют распорками из бруса, чтобы исключить деформации стенок под весом бетона.

Монтаж опалубки

Пример установки арматуры. Также уложены плиты пеноплекса
Шаг 5. Замешивают и заливают по периметру опалубки раствор в соотношении: 1 часть цемента, 3 части песка и 6 частей мелкого щебня. Заливку выполняют поэтапно, уплотняя раствор при помощи лома или длинного металлического прута. Когда пространство будет заполнено бетоном, поверхность бортиков разглаживают кельмой и оставляют сохнуть. Чтобы при высыхании бетона поверхность не растрескивалась, бортики накрывают плотной пленкой и периодически увлажняют. На упрочнение стенок котлована необходимо около 28 дней.

Этапы работы с бетоном

Заливка раствора в опалубку
Шаг 6. Как только бетон достаточно упрочнится, снимают опалубку. Делать это нужно аккуратно, чтобы не повредить поверхность. После демонтажа опалубки и полного высыхания бетона дно будущей купели выравнивают стяжкой. Ее толщина – от 6 до 8 см; соотношение цемента, песка и щебня – 1:3:5. Цемент используют М400 и выше, поскольку качество раствора здесь имеет особое значение.

Стенки купели после снятия опалубки

Бетонные стенки купели
Шаг 7. После высыхания дна готовят штукатурную смесь на основе цемента и покрывают стенки купели. Толщина штукатурного слоя — от 0,3 до 10 мм.
Шаг 8. Когда высохнут стенки, внутреннюю поверхность купели нужно обработать гидроизолирующей пропиткой глубокого проникновения. Наносят ее валиком или широкой кистью, кому как удобнее. Как правило, для купели требуется 3-4 слоя пропитки. Перед нанесением очередного слоя поверхность должна хорошо просохнуть.
Шаг 9. Выполняется декорирование бортиков и чаши купели. Для этого можно использовать резиновую краску или керамическую плитку. Красиво смотрится купель, выложенная плиткой-мозаикой. Для кладки применяется водостойкий плиточный клей.

Декоративная отделка бортиков
Если нет опыта в укладке плитки, жидкая резина является самым идеальным вариантом: доступная по цене, долговечная, легко наносится валиком или краскопультом, не вызывает аллергию.

Пример гидроизолированной купели

Бетонная купель с отделкой мозаикой
Завершающим этапом в строительстве купели считается установка лестницы. Ее можно смонтировать самостоятельно из нержавеющих трубок или купить готовую в магазине. Способ монтажа зависит от конструкции лестницы: одни модели вмуровывают концами в пол рядом с купелью, другие цепляют за бортик.

Ступенька лестницы

Лестница для купели

Купель с лестницей

Установленная лестница
